2D FLOOR PLANS,
ELEVATIONS,
& LEASE AREA ANALYSIS
Accurate. Affordable. Ready FAST.
Overview
Rogue offers precision 2D services including laser-measured floor plans, lease area analysis, and clean DWG, PDF, or other CAD file formats delivered to match your needs. Whether you’re managing commercial real estate, planning a remodel, or simply need clear layout documentation, our floor plans are affordable, fast, and available as a standalone 2D deliverable. While we use laser scanning tools for precise measurement, not every project requires full 3D outputs.
What We Offer

Floor Plans
Laser-verified 2D plans with clear, accurate layout and dimensions. Great for space planning, records, and construction prep.
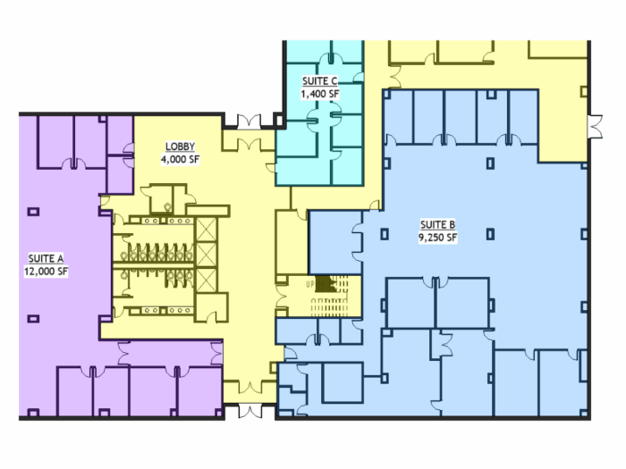
Lease Area Analysis
BOMA-compliant lease breakdowns with optional color-coded zones—ideal for commercial and multi-tenant real estate.


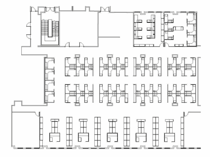
Furniture Layouts
Scaled furniture plans to support move-ins, space planning, or leasing strategy.
Reflected Ceiling Plans
Overhead detail drawings for lighting, diffusers, sprinkler layout, or other ceiling-based systems.


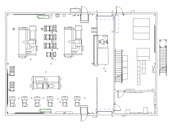
Equipment Layouts
Layouts that detail major equipment placements, mechanical clearances, or fixture positioning to support efficient facility planning.
Elevations & Exterior Facades
Interior or exterior elevation drawings, including simple exterior facades, to support permit applications and city approvals.


Floor Flatness & Slab Elevation Mapping
Heat maps showing high and low points across your slab to catch costly flatness issues early—ideal for polished concrete, racking, or level-sensitive installations.
Why Choose Rogue
- Fast, efficient project turnaround
- Precision measurements from trusted professionals
- Flexible methods tailored to each site
- Trusted by architects, engineers, and facility managers nationwide
- Backed by decades of industry experience, our team has documented hundreds of projects and delivered CAD files for projects both large and small.
Our Process

Request a Quote
We’ll confirm your project scope and pricing.

Site Visit + Capture
Our team visits your site to take detailed measurements.

Plan Development
We begin building your 2D files using the most efficient tools for your space.

Final Delivery
Files are delivered in your requested format when complete.
Industries Served
Commercial Real Estate
Architecture
Engineering
Industrial/Manufacturing
Education Campuses
Residential Real Estate
Interior Design
Healthcare Facilities
Retail Space
Franchise Buildouts
Did You Know?
We tailor our 2D workflows to your project. Whether we use laser measurement, scanner-based capture, or another efficient method, our goal is to deliver clean, accurate layouts as quickly as possible—without overcomplicating your budget.
Ready to Get Started?
Need a quote or want to talk to our team? Let us know what you need—we’ll take care of the rest.








